| Year | 2016 |
| Manufacturer | FOREST RIVER |
| Brand | FORESTER |
| Model | 2291S |
| RV Type | Motorhome |
| Class | C |
| Fuel Type | Gas |
| Status | Used |
| Odometer | 42100 km. |
| Stock No. | 7712B |
| Financing Available | |
| Warranty Available | |
| VIN | N/A |
| Chassis | FORD E-350 |
| Engine | N/A |
| Transmission | N/A |
| Suspension | N/A |
| Leveling | N/A |
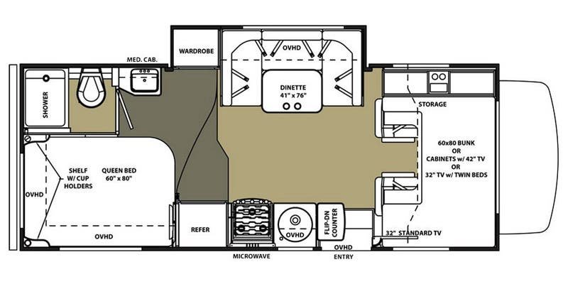
| Exterior Length | 25.0 ft. |
| Sleeping Capacity | 6 person(s) |
| Interior Colour | MINK & MAPLE |
| Exterior Colour | STANDARD EXTERIOR GRAPHICS |
| Slideouts | N/A |
- Ford E350 Gasoline Chassis
- Power Patio Awning
- Ample Exterior Storage
- Slide Out Awning Topper
- MaxxAir Vent Cover
- Rear Ladder
- Rear Vision Camera
- Cummins Onan RV QG 4000 Generator
- Swivel Passenger Seat
- Overhead Storage or Twin Bunks
- U-Shaped Sleeper Dinette
- Corian Solid Surface Countertop with Flip-Up Extention
- Stainless Undermount Sink
- 3 Burner Propane Cooktop with Glass Lid
- Rangehood
- Built-in Microwave
- Corner Queen Bed with Adjustable Reading Lamps
- Large Wardrobe with Dresser Below
- 3 Piece Bathroom (Toilet, Shower & Sink)
- Glass Shower Doors
- N/A
Disclaimer: Product information, pricing and photos are as accurate as possible and are subject to change without notice. Our website disclaimer further outlines Can-Am’s advertising policies, our privacy policy summarizes how we use any personal information you submit to us, and our pricing policy details how we calculate posted pricing.
$408 Bi-Weekly
$64,900 Selling Price
*Plus tax & licensing.
*Plus tax & licensing.

